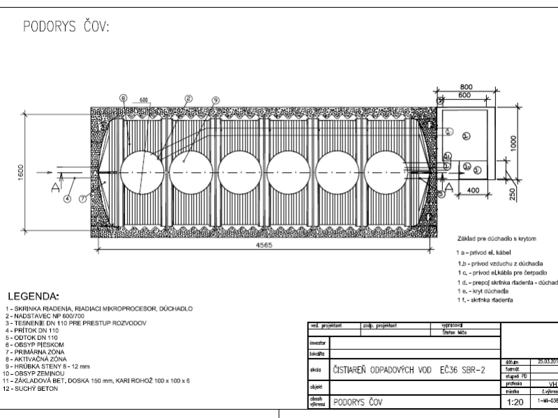
Čistírna odpadních vod EČ 36 SBR-2 pro počet obyvatel 20-36

Splaškové OV natékají gravitačně, nebo tlakem PVC potrubím přes gumové těsnění DN 110 (možnost DN 125, DN 150) do primární zóny. V aktivační zóně dochází k odbourávání organického znečištění pomocí bioaktivní směsi (aktivovaného kalu) a kyslíku. Provzdušňování v aktivační zóně je zabezpečené aeračním elementem napojeným na přívod vzduchu z rotačního dmychadla. Aby se oddělil aktivovaný kal od vyčištěné vody, nastává sedimentace. Aktivační zóna přestane provzdušňovat a aktivovaný kal se usadí na dno. Následně řídící jednotka sepne elektromagnetický ventil a elektrické čerpadlo odčerpá vyčištěnou vodu do odběrného místa pro vzorky a dále natéká do odtokového potrubí. Sedimentace a následné vypouštění vyčištěné vody probíhá v nočních hodinách. Tímto způsobem se může vyčištěná voda používat na zavlažování, přímo vypouštět do recipientu nebo do drenážního podmoku, resp. do vsakovací studně. ČOV má 3 pochuzné víka v úrovní terénu o průměru 60 cm a nosností cca 200 kg.

Čistírna nemá žádné mechanické nastavovací armatury a vyjímatelné či pohybující se součásti. Všechny procesy jsou řízeny počítačovou řídící jednotkou.

V ceně je zahrnuta doprava na místo realizace, zprovoznění (zapojení řídící jednotky k ČOV, zavezení naočkovaným kalem), zaškolení obsluhy.

340 600 Kč bez DPH

Technologické výhody

  • Žádné manuální ovládání, žádné ventily - čistící proces je řízen automaticky, počítačem
  • Elektronika a dmychadlo není umístěná v nádrži ČOV, ale mimo její prostor, což zvyšuje její životnost
  • Žádné časové omezení napouštění odpadní vody do nádrže. ČOV je možné napustit nárazově až 5400 l odpadní vody bez ovlivnění kvality vyčištěné vody
  • Řídící jednotka je na přední straně řídícího boxu vybavená světelnou signalizací poruchy, která kontroluje všechny funkce čistícího procesu. Jednotka signalizuje poškození řídící jednotky, dmychadla, pokles a zvýšení tlaku
  • Řídící jednotka je připojena k nádrži ČOV jednou vzduchovou hadicí pro provzdušňovaní a kabelem od elektročerpadla
  • Nádrž ČOV je vyrobena z polyethylénu, za použití technologie rotačního tváření, nádrž tvoří jeden kompaktní celek bez jediného sváru – 100% vodotěsnost
  • Životnost nádrže ČOV je min. 50 let, hmotnost včetně vestavěné technologie je 580kg - snadná manipulace

Nákresy osazení ČOV